How to choose a kitchen sink

Which sink to choose for the kitchen - Materials

The choice of material depends on several factors:

  1. Possible budget spent;
  2. Interior Design;
  3. Personal wishes.

What are kitchen sinks made of?

  • Made of ceramics;
  • Stainless steel (steel);
  • Artificial stone;
  • Composite.

Ceramics

Ceramic kitchen sinks have a number of positive qualities that are not inherent in all materials.

They are absolutely not afraid of scratches, the influence of chemicals (they are good with any detergents), and they tolerate temperature fluctuations (you can put anything from frozen food to hot frying pans). At the same time, ceramic sinks are easy to care for and do not retain dirt or leave odors.

“A smooth and pleasant surface is one of the important factors for any housewife who decides which kitchen sink to choose”

In addition, ceramic products are quite heavy, which causes inconvenience during installation. They don't like strong blows - they get chipped. And accordingly, the cost is not budget.

Stainless steel

Stainless steel kitchen sinks are very popular. The steel contains chromium and nickel, which provide the products with a shiny effect and anti-corrosion properties.

“The quality is checked using a magnet. If it glides across the surface, then the product is really high quality.”

Most buyers who decide which sink to choose for their kitchen look only at the appearance of the product. But to make the right choice, you need to rely on quality characteristics.

Advantages Flaws
It has good practicality and hygiene. Does not accumulate bacteria, dirt or grease Constant exposure to rough objects may cause minor scratches.
Stainless steel is widely used in many areas due to its resistance to mechanical stress.
Heat resistance. Nothing bad will happen if you expose it to high thermal fluctuations. Limescale deposits in the form of streaks and stains. If you don't get rid of them in time, it may be difficult to cause them later.
Easy to care for. To maintain the appearance in order, any detergents are used. It is enough to occasionally wipe them with a sponge or napkin (to obtain shine)
Wide choose. Suppliers offer products of any size and shape It does not have a sound-absorbing substrate, which causes loud noise when water or dishes fall
Profitable price.

Stainless steel products go well with any type of furniture. Therefore, this will be an excellent solution to the question of which sink to choose for the kitchen.

Fake diamond

Kitchen sinks made of artificial stone have the following elements:

  • Stone chips;
  • Polymer for gluing them;
  • Dyes.

“The volume of polymer used is an important part of production, since the further strength of the product depends on this component.”

Artificial stone sinks must be coated with a protective agent, gelcoat. Thanks to which dirt cannot clog into the pores. Accordingly, another good positive quality of the product appears - moisture resistance.

Such a product is in no way susceptible to the influence of chemicals (only abrasives). When water hits, it does not make unnecessary annoying noise. Resistant to temperatures up to 180-280 degrees and NOT resistant to sudden thermal changes.

During operation, the product does not lose color and is ready to serve its owners for up to 10 years. If the product succumbs to mechanical damage, repairs will not be difficult.

Suppliers offer a huge selection of models of various shapes, sizes and colors. But you need to take into account that the price of sinks made of artificial stone is much higher than other types.

“If the product is combined with a countertop, and, for example, it cracks, both will need to be replaced.”

Even if you already know which sink to choose for your kitchen, you need to familiarize yourself with other models that manufacturers offer, in addition to your option. Read on!

Composite

At first glance, all products made from composite materials are almost the same, only in cost. But in fact, they have different quality characteristics that affect their service life.

The main range of models of this type are budget ones and do not have the most enviable characteristics. Made from high-quality granite chips of different compositions, which is why the surface has a non-uniform appearance and roughness.

Even if you have already decided which sink to choose for your kitchen, we want to tell you a little more about composite products.

The main advantages of sinks with acrylic resins (expensive):

  • Acrylic is very resistant to mechanical damage; cracking is practically impossible. So you can safely drop the plates directly into the bowl;
  • Washing products can withstand temperatures up to 280 degrees. Therefore, nothing will happen to them if you put a hot frying pan and saucepan;
  • Complete safety is one of the advantages of this product. When heated, it does not emit harmful toxic substances;
  • The appearance of mold and fungi is excluded.

Budget kitchen sinks with polyester resins have quite a few negative qualities:

  • Does not tolerate sudden temperature changes (you cannot place a frying pan, saucepan, or kettle);
  • Not safe, releases harmful substances;
  • Cold;
  • Easily damaged and scratched.

Budget options for marble sinks are made of polyester resin; they are much cheaper, but have a number of disadvantages:

  • They are afraid of temperature changes (for example, they cannot put a hot frying pan in them or place them next to the oven);
  • Cold to the touch;
  • They emit styrene, which is unsafe for health;
  • Easily damaged.

The decision about which sink to choose for the kitchen: stainless steel or stone, ceramics or composite – depends only on you!

Pros and cons of a stone sink

Many modern manufacturers of sanitary equipment create sinks made from artificial stone, granite chips, quartz sand or marble chips in combination with polymer resins and pigments. Each company uses its own patented material with a unique composition, for example, Franke has Fragranite and Tectonite, and Blanco Silgranit and Progranit.

Each composite material has its own characteristics and advantages, but in general, artificial stone models combine:

  • High aesthetics due to high-quality imitation of different types of natural stone.
  • Absorbs the sound of falling water.
  • Possibility of eliminating defects: small scratches and chips can be eliminated by grinding and polishing, while large damage can be repaired using a suitable compound in a workshop.
  • An abundance of colors, allowing you to choose a model to match the tabletop.
  • Resistant to high temperatures.
  • Variety of forms.

The disadvantages of stone sinks include their high cost, considerable weight (installation requires a permanent foundation), the possibility of color change under the influence of dyes and the fear of thermal shock. When using plumbing fixtures made of artificial stone, it is important to avoid sudden temperature changes. In particular, you should not place hot kitchen utensils on a stone surface.

Kitchen sink installation methods

You need to decide on the installation method:

  • Overhead;
  • Mortise;
  • Under-table;
  • Integrated.

Overlay view . The sink is installed on a separate cabinet, which differs slightly in height from the countertop. This creates gaps (cracks) into which leftover food and water get trapped.

Mortise . This type is inserted into the tabletop into special slots. The joints will be completely sealed.

Podstolny . Installed slightly below the height of the table top. The ideal materials for which are stone, plastic, and composite material.

Integrated . This type should be installed only by professionals, which sometimes costs a pretty penny. It is not just placed as a separate element, but becomes a single part of the countertop.

Before deciding which sink to choose for your kitchen, be sure to check the installation method.

Selecting the type of sink installation

Opinions vary about which sink is best for the kitchen. This largely depends on how it is installed, since sinks are often selected taking into account the individual characteristics of the customer’s kitchen area.

Overhead sinks

The invoices are mounted on the cabinet according to the lid principle. Suitable for modular furniture. Many countertop sinks belong to the universal and inexpensive segment, but today they are less common. They have simple designs and are made of thin stainless steel. Their installation is not difficult even for home craftsmen. Often installation is carried out on top of a separate cabinet, thus replacing the tabletop.

The following characteristics are not in favor of overhead bowls:

  • they have a minimum number of models;
  • when installed, they rise above the level of the working surface to the height of the flange, which looks unaesthetic;
  • With such a design, it is difficult to achieve a tightness of the gap under the edging flange, where moisture then penetrates and dirt collects.

Built-in sinks

Mortise ones protrude above the working surface and are mounted directly into the tabletop, for which a hole is pre-cut in it. Due to the tight fit and elevation, moisture and dirt do not accumulate in the joints. Such products have a wide selection of models that are precisely matched to the overall style of the kitchen set.

Built-in sinks

Flush-mounted sinks are a rare type of sink that is installed only by professionals. They cost more.

Under-table - built below the level of the tabletop. This installation method ensures hygiene and ease of use, as well as a pleasant appearance. But these sinks are more expensive than others.

Important! When placing plumbing equipment in a room, be sure to take into account its three main parameters: depth, width and height. This is the only way to choose the optimal size bowl for a specific room.

Design and forms

The variety of models allows you to choose a product of any shape and design you like.

Form

When the question arises of which sink to choose for the kitchen, one of the important decisions will be choosing the right shape:

  1. Rectangular, square;
  2. Round;
  3. Oval;
  4. Polygonal.

“The most popular and beautiful products are those with a straight shape, and the most spacious ones are those with a round shape.”

Actually, here is the answer to the question “Which sink to choose for the kitchen: round or square.”

Design

The form comes with one bowl . This is the most popular type, which does not take up much space. Their installation does not require much space.

With two bowls of the same or different sizes. An excellent option for small kitchens.

Corner sink. Demanded for small rooms (up to 9 sq.m.).

With wings. This is an additional work area that is used for:

  • Placement of washed dishes;
  • Product slicing;
  • Storage of accessories.

Other important criteria

When choosing a kitchen sink, you should also consider the following points.

Sink capacity

To choose the right option, you should take into account the number of people in the family, the time that will be spent on cooking, and the kitchen space itself. The volume of utensils involved depends on these factors.

Important! The sink and the size of the kitchen area should be in harmony with each other. The sink should fit not only plates, but also pots.

Room area

The area of ​​the room determines the size of the kitchen sink. So, in a small room, a small or medium-sized sink is appropriate, and spacious kitchens allow you to choose different options. The number of bowls is from 2 to 5, while one-and-a-half models, where one bowl is larger than the other, are in great demand. They are installed in kitchens with a small square footage, where it is not possible to use a large sink with several recesses.

Kitchen style

The overall style of the kitchen should match the sink model. For a classic set, models made of ceramics or artificial stone are suitable. Modern style goes perfectly with stainless steel and artificial stone. In an antique-style kitchen, metal sinks made of bronze or brass look great.

Manufacturer reputation

The choice of which sink is best for the kitchen remains with the customer. However, it is worth paying attention to global manufacturers who offer modern solutions that make working in the kitchen a pleasure.

Kitchen sinks from European manufacturers, primarily from Germany, Italy, Spain and the Netherlands, have the best reputation. The most famous of them: FRANKE, TEKA, BLANCO, SCHOCK, NAYES, ALVEUS, REGINOX.

Easy to use and care

Which sink is best to choose for the kitchen also depends on the frequency of its use and the time spent on maintenance.

Modern housewives increasingly prefer various types of kitchen sinks made of stone, while metal options are losing their popularity. The artificial stone sink has a pleasant appearance, is easy to clean and pleasant to the touch. Also, during operation there is no unpleasant noise or rumble.

Which sink manufacturer is better to choose for the kitchen?

Popular brands are: Franke, Alveus, Blanco, GranFest, Florentina, Reginox, TEKA, Ukinox.

Let's look at the TOP 5 manufacturers of kitchen sinks

Franke

As soon as the question arises, which sink to choose for the kitchen , most professional sellers will answer - of course Franke. After all, its range has a lot of different designs, sizes and shapes, and at the same time, it has a unique quality.

The surface is offered smooth (semi-matte and glossy), micro-decorated, textured. Ease of installation is one of the main indicators when choosing, because none of the types of installation (overlay, flush or under the countertop) will cause difficulties.

The deep bowls in the sink are designed at such a slope that the absence of water splashes is guaranteed. Cleaning the sink and surface is possible with any means (preferably not containing abrasive components).

“In addition to the sink, you don’t need to buy linings or fittings, everything comes included! This is an excellent solution to the question of which sink to choose for the kitchen.”

The cost of Franke kitchen sinks varies, from budget to luxury. You can check prices on suppliers' websites or in stores.

Minuses:

  • High price for most models;
  • Products with microdecor accumulate plaque over time, which can only be cleaned with a special product.

Blanco

Another brand when deciding which sink to choose for the kitchen is Blanco. Most people always know this brand; you understand that this option is one of the popular ones for a reason.

  1. Large selection of models from different materials;
  2. Easy to install (instructions are always included to make the task even easier for you);
  3. Ideally selected shape and depth of the bowls, guaranteeing no splashes of water;
  4. The kit must include a waste collection valve, drainage fittings and more;
  5. Easy to maintain and clean;
  6. The price range of Blanco sinks is affordable for everyone.

Flaws:

Sometimes there are small scratches; get dirty quickly and are easy to clean; Most of them have a high price.

Alveus

All products sold are equipped with the necessary equipment: clamps, valves, drain fittings, dispensers for detergents and more. Among the offered models there are overhead, mortise, and countertop-mounted products.

“Almost every model is equipped with wings for drying dishes”

Reasonable prices and guaranteed service life will please the buyer who is still deciding which sink to choose for the kitchen.

Cons: The composite surface is not treated with protective elements, and the components often come separately.

GranFest

GranFest kitchen sinks consist of 80% quartz sand and are made by casting. The surface can withstand temperatures up to 180, so you should not place very hot pots and pans.

“Some models are reversible, that is, they have a drain-overflow installation.”

Installation of products is carried out as tightly as possible to the tabletop, without gaps.

A budget option suitable for most buyers deciding which sink to choose for their kitchen.

Flaws:

  • Sometimes you get a defective product. Therefore, it is worth checking it carefully before choosing such a sink for the kitchen;
  • The holes for the mixer are drilled independently;
  • Unfortunately, this type is not entirely durable, which is understandable from its cost;
  • The material is not durable at all, so you need to be careful when placing heavy objects in sinks.

Well, this is the last brand left in the ranking of manufacturers.

Let's sum it up

Which is better, a stone sink or a good stainless steel one? The table below shows their comparison according to the main evaluation criteria.

Comparison criterion For stainless steel models For models made of artificial stone
Appearance Stylish, modern Beautiful, respectable look of natural stone
Color spectrum The natural beauty of metal with a glossy, matte or textured finish Many shades
Sound of falling water Voiced Muted
Visibility of scratches Glossy models have a high Low, and any scratches that appear can be sanded and polished
Visibility of drops and dirt Expressed Minimal, presence of dirt-repellent properties
Strength, impact resistance High Lower, but good, especially for models made of granite chips
Resistance to temperature changes High Lower, but high-quality stone sinks can withstand temperatures up to 280-300 ° C
Variability of forms Average High
Possibility of matching to match the countertop or interior color scheme No Eat
Tendency to stain No Eat. Stains from beets, coffee, wine and other coloring products should be cleaned immediately (within an hour maximum).
Weight Low High
Difficulty of installation Moderate, overhead models are the easiest to install, mortise models are more difficult Higher due to significant weight
Price Below Much higher
Resistant to contamination, hygienic High High, some models have antibacterial protection
Interior compatibility Good, they look most harmonious when decorating a kitchen in a modern style Good, stone sinks go well with both antique and modern interiors. Ideal for interiors in classic, country, retro styles.
Difficult to care for Medium, with irregular care the surface becomes dull, covered with plaque and loses its attractive appearance Medium, if not regularly maintained, traces of rust and limescale may appear

Stainless steel kitchen sink bowl

Stainless steel is a popular material used to make different types of bowls for washing dishes in the kitchen. This material is promisingly used by leading manufacturers of kitchen equipment. High-quality modern stainless steel contains:

  • Nickel elements.
  • Chromium elements.

The use of this material in the production of kitchen sinks gives the appearance an excellent natural shine and is a reliable anti-corrosion agent. The only thing that users of metal sinks note is the presence of noise from it during operation, but manufacturers took this drawback into account and began to produce stainless steel sinks with a special noise absorber made of silicone material placed under the bowl.

Buyers are offered two types of kitchen bowls: stainless steel, a sink with a glossy surface, and a sink with a matte surface. There may be a textured pattern on the surface of the sink.

Important! A quality stainless steel sink will not react to a magnet.

Types of materials

How to choose the right sink for the kitchen so that it fully satisfies all the needs of the owners? An important place here is occupied by the correct choice of material from which the product was made.

Let us list the most popular materials from which modern kitchen sinks are made.

Stainless steel

This material is the most popular and has an affordable price. For the manufacture of sinks, steel is used, which contains 18% chromium. The composition also contains 10% nickel. The thickness of the steel can range from 0.9 to 1.2 mm. The surface can be matte or glossy, or anti-graphic. The latter option is the most preferable, since such a surface hides traces of water and various scratches well.

Standard stainless steel kitchen sink with one bowl

The main advantages of this type of washing:

  • environmental friendliness. Stainless steel is a safe food material;
  • Resistant to very high temperatures, corrosion and acid. She is not afraid of any solvents or aggressive substances;
  • easy care is provided;
  • goes well with any kitchen furniture;
  • durability;
  • has low cost. It depends on the size of the sink, the thickness of the metal, the presence of additional accessories and the specific manufacturer.

Flaws:

  • too noisy. To eliminate this drawback, special gaskets are placed under the sink;
  • If the surface is glossy, then over time it may become covered with small scratches, losing its original appearance.

Tip: To check the quality of stainless steel, you need to test it with a magnet. High-quality steel will not become magnetized.

A natural stone

Such products are made from granite, onyx, marble and other materials. They are among the most expensive options, so they are used relatively rarely.

Stone sink

Their main advantages:

  • beauty and unique design;
  • high degree of sound absorption;
  • durability;
  • impact strength, resistance to mechanical stress;
  • Possibility to choose material, color and design.

Flaws:

  • significant weight;
  • need for special care;
  • very high cost.

Ceramics

Porcelain or earthenware products are coated with a layer of enamel, which performs protective functions. Porcelain products are more expensive than earthenware, but they are also much stronger.

Ceramic kitchen sink

Advantages of ceramics:

  • wide choice of colors;
  • scratch resistance;
  • ability to successfully withstand high temperatures;
  • they require minimal care.

Flaws:

  • too fragile. If a heavy object falls into the sink, cracks may occur;
  • heavy weight;
  • Difficulty in self-installation.

Composite material

Such products consist of 80% natural stone chips, and 20% of a binder polymer composition.

Artificial stone sink

The composite has the following advantages:

  • it perfectly absorbs the sound of flowing water;
  • There is a choice of any color option;
  • the durability of the material is several decades;
  • he is not afraid of high temperatures. It can easily withstand 280 degrees;
  • does not require maintenance.

Disadvantages include heavy weight and high cost.

Note: There are also acrylic composite kitchen sinks. They differ from those described above by being more repairable, but at the same time they are less durable and not resistant to high temperatures.

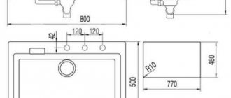
What size of sink is better to choose, its depth

The depth and size of the kitchen sink are not a housewife’s preference, but rather a rational decision when a large sink in a small kitchen will look unsightly. In this case, experts advise paying attention not to kitchen sinks with two large bowls, but to a corner kitchen sink, which may have one large bowl or two small ones. In corner kitchen wash units, the sinks are positioned at a 90-degree angle to each other. This choice will be the best for a small kitchen.

The depth of the bowl in the equipment is also an important aspect; if you choose a bowl that is too deep, your back will get tired from frequent bending, pain in your shoulders and arms. When the bowl is shallow for the amount of dishes you have, water will splash around and on the kitchen walls.

Experts recommend:

  • The optimal bowl depth is from 150 millimeters to 180 millimeters. Convenient for the hostess, the bowl is quite spacious.
  • Pay attention to the distance from the back wall of the bowl to its front wall; for the correct choice, it should be less than the depth of the cabinet where the sink is installed.

How to choose a kitchen sink

Which sink is best to choose for the kitchen so that it meets all the owners’ requirements? The choice is made according to several criteria:

Functionality

On sale you can find products with different numbers of bowls. Their quantity should be selected based on the ease of use of the sink. If your family has more than three people, then the most acceptable option would be to purchase a sink with two bowls. One of them is usually used for washing dishes, and the other bowl will be useful for placing fruits and vegetables in it, defrosting food, and other actions.

A three-bowl sink is used if space permits. But this option requires complex installation and a special retractable faucet.

The photo shows a kitchen sink with two bowls

Also, the comfort of work increases if there are additional devices on the sink: a cutting board, a place for dishes, a compartment for detergent.

Size and capacity

How to choose the size of a kitchen sink to ensure ease of use? You need to pay attention to the size of the kitchen unit, as well as the kitchen space itself. In a large kitchen, a wide and deep sink can easily be installed.

Sink material

In the manufacture of sinks the following are used:

  • stainless steel;
  • a natural stone;
  • faience, porcelain;
  • composite material. The basis of the product is granite or marble chips, quartz.

Installation method

The choice of sink installation method depends on the design of the kitchen furniture. The sink can be integrated into the furniture, embedded in it, located below the level of the cabinet, or placed on top of the cabinet.

Design

Sink in the kitchen interior
Since the appearance of the sink and its stylistic solution can be completely different, it is important to ensure that this item is in harmony with other kitchen furniture. The sink should complement the interior and fit organically into it.

Rating
( 1 rating, average 4 out of 5 )
Did you like the article? Share with friends:
For any suggestions regarding the site: [email protected]
Для любых предложений по сайту: int-era@cp9.ru